High Quality Products Can Be Purchased.
You are here: Home » News » Two-Vessel Vs. Three-Vessel Brewhouses: A Complete DEGONG Brewing Guide

Two-Vessel Vs. Three-Vessel Brewhouses: A Complete DEGONG Brewing Guide

Views: 25     Author: Site Editor     Publish Time: 2025-11-21      Origin: Site

Choosing the right brewhouse configuration is one of the most important decisions for any brewery. The design directly affects production efficiency, recipe flexibility, workflow complexity, and the long-term scalability of your brewing operation. Here, DEGONG explains the key differences between two-vessel and three-vessel brewhouse systems to help you select the setup that best matches your brewing goals.


1. Brewing Process Complexity


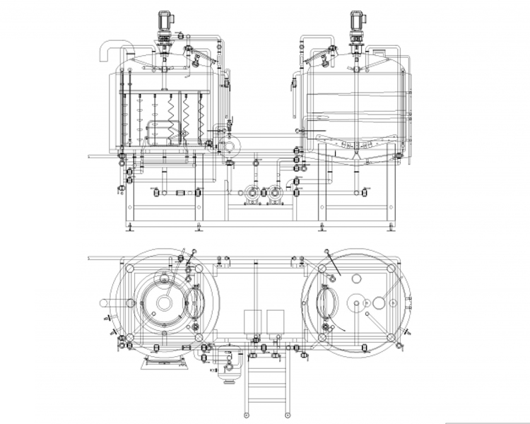
Two-Vessel Brewhouses

A two-vessel brewhouse typically combines mashing + lautering into one vessel, while the second vessel is used for boiling + whirlpooling.

This streamlined design reduces the number of process stages, making operations simpler and easier for smaller breweries or those producing straightforward, traditional recipes.


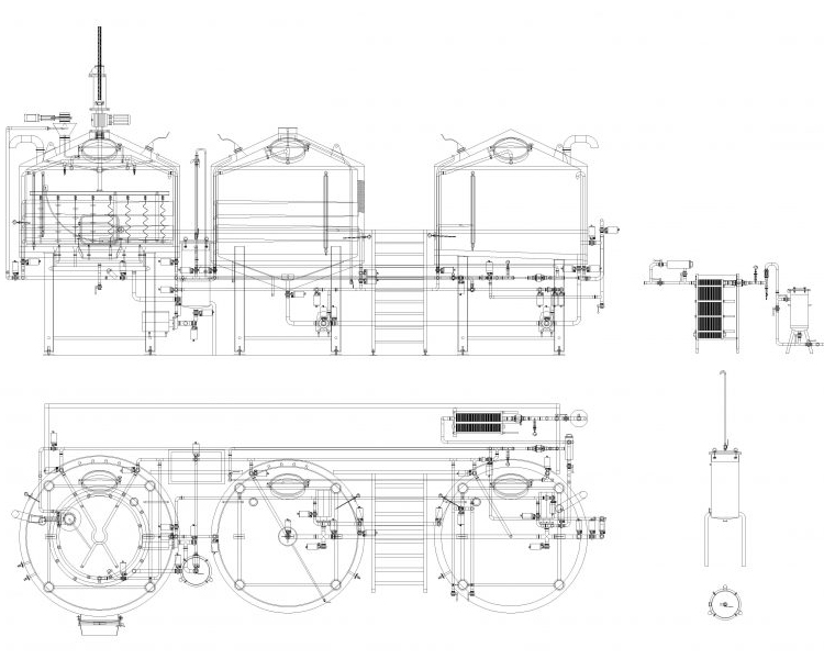
Three-Vessel Brewhouses

A three-vessel brewhouse separates the workflow into:

  • Mash tun

  • Lauter tun

  • Kettle/whirlpool

This division gives brewers significantly more process control, allowing advanced techniques, multi-step mashes, and improved consistency—ideal for breweries with complex beer portfolios or higher quality demands.


DEGONG Insight:

If your priority is simplicity and lower cost, a two-vessel works well.

If you want precision, flexibility, and premium brewing control, a three-vessel system is the superior choice.


degong-three-vessel-brewhouse-design-002


2. Space, Footprint & Equipment Layout


Two-Vessel Systems

  • Requires less floor space

  • Fewer auxiliary components

  • Ideal for compact breweries or taproom-based production

This minimal footprint makes it attractive for start-ups or breweries with limited room.


Three-Vessel Systems

  • Requires more space due to additional tanks

  • More piping and system integration

  • Allows smoother workflow and simultaneous operations

Although larger, a three-vessel layout often creates a more efficient production line once running at scale.


DEGONG Recommendation:

Always evaluate your current space and your future expansion plans before committing to either system.


degong-two-vessel-brewhouse-design-002


3. Scalability & Production Capacity


Two-Vessel Limitations

Two-vessel systems are great for small to medium batch production but may become limiting as volume increases. Overlapping processes are not possible, so throughput remains lower.


Three-Vessel Advantages

Three-vessel systems excel in high-volume environments. With mash, lauter, and boil happening independently, brewers can:

  • Start the next batch while the previous one is lautering

  • Significantly increase daily output

  • Run more efficient production cycles


DEGONG Conclusion:

If long-term growth is part of your business plan, a three-vessel brewhouse is a future-proof investment.


degong-three-vessel-brewhouse-design-001


4. Workflow Flexibility & Recipe Control


Two-Vessel Workflow

  • Simple, clean, and easy to operate

  • Faster cleaning cycles

  • Best for breweries with a smaller recipe range

However, it offers less flexibility for specialty styles or intricate brewing methods.


Three-Vessel Workflow

  • Independent control over each brewing stage

  • Better mash efficiency and lautering performance

  • Supports advanced brewing techniques (multi-step mashing, decoction, etc.)

  • Faster batch-to-batch turnover


DEGONG Note:

If your brewery focuses on innovation, seasonal specialties, or diverse beer styles, the three-vessel structure offers unmatched control.


degong-two-vessel-brewhouse-design-003


5. Cost Considerations


Two-Vessel Brewhouse Costs

  • Lower initial investment

  • Reduced maintenance and cleaning expenses

  • Ideal for new breweries with limited budgets


Three-Vessel Brewhouse Costs

  • Higher upfront cost due to additional tanks

  • More complex installation

  • But greater long-term efficiency and ROI, especially for high-volume production


DEGONG Guidance:

Align your equipment choice with your financial strategy, not just short-term cost savings.


6. How to Choose the Right System for Your Brewery


Ask yourself these key questions:

  • What is your projected production scale over the next 3–5 years?

  • How much floor space is available today?

  • Do you require advanced recipe flexibility?

  • What is your equipment budget?

  • Will your brewing schedule require overlapping batches?

  • Are you building a specialty-focused craft brewery or a volume-oriented operation?


General DEGONG Recommendation:

  • Choose a Two-Vessel if you want simplicity, affordability, and compact design.

  • Choose a Three-Vessel if you want speed, precision, scalability, and premium brewing performance.


degong-three-vessel-brewhouse-design


PAY ATTENTION TO US
Facebook
Twitter
Google
LinkedIn
Instagram
DEGONG DTR
Brewery - Chemicals - Chocolate - Cosmetics - Pharmacy - Industry - Agriculture - Food - Dairy
  • Whatsapp
    Fax: +86 186 1518 5568
  • Email
    info@degonget.com
  • Phone
    Toll Free: +86 531 58780867